Designed for Real Life
The Grand Modular Home represents a sophisticated fusion of contemporary design and functional living.
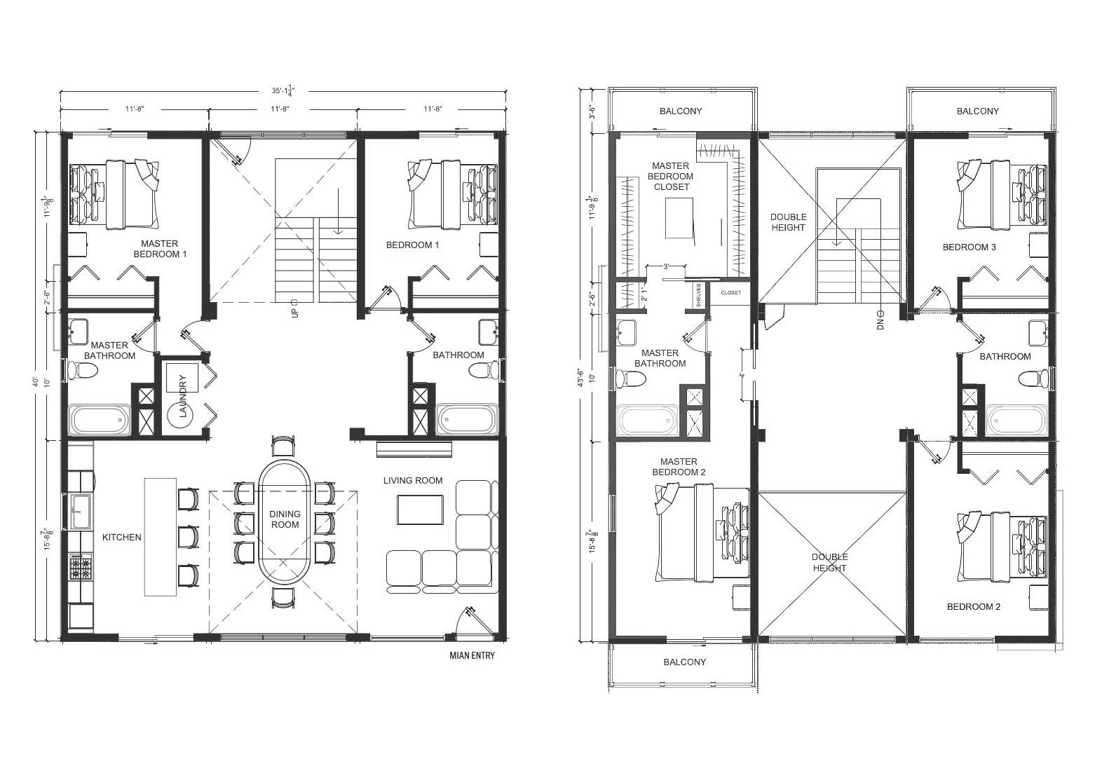
GENERAL PROJECT DESCRIPTION
EXTERIOR WALL
- Light gauge metal wall framing
- High-Performance insulation according to Title 24 calculations
- Weatherproof membrane
- Structural walls
- Standard finishing: siding, stucco
INTERIOR WALL
- Light gauge metal wall framing
- High-Performance insulation (sound and weather proofing)
- Drywall and plaster flat finishing
ROOF/CEILING
- High-Performance insulation according to Title 24 calculations
- Metal framed
- Weatherproof membrane
- Underlayer sheathing
- Standard exterior finishing: High Quality shingles
- Standard interior finishing: Smooth finishing with drywall
FLOOR
- High-Performance insulation according to Title 24 calculations
- Metal framed
- Structural and fire retardant plywood layer as subfloor
- Standard finishing: High Quality vinyl planks
WINDOW
White vinyl sliding window, energy efficient and Title 24 compliant. Egress windows included. Tempered glass windows for bathrooms.
KITCHEN
- High Quality melamine
- Only bottom cabinets included
- Soft close Hinges
- Standard handles
- High quality countertop
- Electric cooktop
- Kitchen range hood
LIGHTING
- Dimmer controls strategically placed on all living areas and bedrooms
- Vanity lamps
- High Quality LED recessed lights
BATHROOM
Completely equipped with:
- Toilet
- Shower pan
- Vanity
- Bath accessories (handles, holders)
- Melamine and Quartz counter vanity
- Vacancy sensor
- Humidity sensor
- Exhaust fan
EXTRAS
- Fresh Air system
- Laundry room
- Tankless electrical water heater
- Closet cabinetry
- Fridge ice maker box
PREMIUM UPGRADES:
Take your home to the next level with premium finishes like granite countertops, hardwood flooring, smart home systems, and more. Our team is ready to help you customize every detail to match your lifestyle and budget.
Ready to Turn Your Real Estate Project Into an Reality?
Don't just dream about the possibilities—take action. Make a smart investment, CONNEST is here to guide you every step of the way.
Book Your Consultation Today and discover how fast and easy it can be to bring your Real Estate Development to life.
Make the first move. Your new opportunity is just a call away.

